物件No. 1375
価格 2,390万円
管理費 4,500円 / 月
修繕積立金 21,412円 / 月
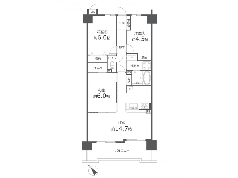
間取り 3LDK
  • 洋室: 6.0帖 / 4.5帖 /
  • 和室: 6.0帖 /
  • LDK: 14.7帖
専有面積 【壁芯】67.80㎡(20.51坪)
バルコニー 10.34㎡
築年数 1997年7月
所在地 愛知県名古屋市熱田区一番2丁目41-3
最寄駅 名古屋市営地下鉄名港線六番町駅 徒歩18分
建物の階数 地上10階建
所在階 2階
部屋番号 206
総戸数 33戸
販売戸数 1戸
主要採光面 南向き
共用部 エレベーター 、 オートロック
構造 SRC
耐震基準 新耐震基準
駐車場の空き 有り
駐車場料金 7,000円 / 月 〜
駐車場・
駐輪場設備
駐輪場
現況 空家
引渡し時期 相談
こだわりpoint
南向き 、 陽当たり良好 、 通風良好 、 ファミリー向き
リノベーション
  • キッチン
    キッチン
  • お風呂
    お風呂
  • 洗面台
    洗面台
  • トイレ
    トイレ
  • リビング
    リビング
  • 洋室
    洋室
  • 和室
    和室
  • 照明
    照明
  • クローゼット
    クローゼット
  • クロス(壁・天井)
    クロス(壁・天井)
  • 床(フローリング・畳等)
    床(フローリング・畳等)
  • 建具(室内ドア等)
    建具(室内ドア等)
設備・セキュリティ
  • システムキッチン
    システムキッチン
  • 三口コンロ以上
    三口コンロ以上
  • シャワー付洗面化粧台
    シャワー付洗面化粧台
  • 追い焚き
    追い焚き
  • 浴室乾燥機
    浴室乾燥機
  • バストイレ別
    バストイレ別
  • 温水洗浄便座
    温水洗浄便座
  • フローリング
    フローリング
  • 和室
    和室
  • モニター付インターホン
    モニター付インターホン
  • 照明
    照明
  • エレベーター
    エレベーター
  • オートロック
    オートロック
敷地権利
所有権
管理形態
委託(巡回)
取引態様
仲介
取扱い不動産会社

株式会社ミネルバ
0823-27-3068
広島県呉市押込西平町21-19
広島県知事(3)10160

宝マンション白鳥

物件紹介
物件概要

物件のアピール

2階部分南向きのため、陽当たり良好です! 敷地内駐車場1台確保済みため、継承可能!

リノベ × 不動産

リノベ解説

◆ システムキッチン新規交換 ◆ ユニットバス新規交換 ◆ 温水洗浄機能付トイレ新規交換 ◆ 洗面化粧台新規交換 ◆ 洗濯機防水パン新規交換 ◆ フローリング張替 ◆ クロス張替 ◆ 床材張替 ◆ クッションフロア張替 ◆ 畳表替 ◆ 襖張替 ◆ 障子張替 ◆ ガス給湯器交換 ◆ 建具新規交換 ◆ TV モニターホン交換 ◆ 照明器具設置 ◆ レースカーテン設置 ◆ ハウスクリーニング 他

  • キッチン
    キッチン
  • キッチン
    お風呂
  • キッチン
    洗面台
  • キッチン
    トイレ
  • キッチン
    リビング
  • キッチン
    洋室
  • キッチン
    和室
  • キッチン
    照明
  • キッチン
    クローゼット
  • キッチン
    クロス(壁・天井)
  • キッチン
    床(フローリング・畳等)
  • キッチン
    建具(室内ドア等)

施工完了年月

2025年8月

MAP

物件No. 1375
価格 2,390万円
管理費 4,500円/月
修繕積立金 21,412円/月
間取り
3LDK
  • 洋室: 6.0帖 / 4.5帖 /
  • 和室: 6.0帖 /
  • LDK: 14.7帖
専有面積 【壁芯】67.80㎡(20.51坪)
バルコニー 10.34㎡
築年数 1997年7月
所在地 愛知県名古屋市熱田区一番2丁目41-3
最寄駅 名古屋市営地下鉄名港線六番町駅 徒歩18分
建物の階数 地上10階建
所在階 2階
部屋番号 206
総戸数 33戸
販売戸数 1戸
主要採光面 南向き
共用部 エレベーター 、 オートロック
構造 SRC
耐震基準 新耐震基準
駐車場の空き 有り
駐車場料金 7,000円 / 月 〜
駐車場・駐輪場設備 駐輪場
現況 空家
引渡し時期 相談
こだわりpoint
南向き 、 陽当たり良好 、 通風良好 、 ファミリー向き
リノベーション
  • キッチン
    キッチン
  • お風呂
    お風呂
  • 洗面台
    洗面台
  • トイレ
    トイレ
  • リビング
    リビング
  • 洋室
    洋室
  • 和室
    和室
  • 照明
    照明
  • クローゼット
    クローゼット
  • クロス(壁・天井)
    クロス(壁・天井)
  • 床(フローリング・畳等)
    床(フローリング・畳等)
  • 建具(室内ドア等)
    建具(室内ドア等)
設備・セキュリティ
  • システムキッチン
    システムキッチン
  • 三口コンロ以上
    三口コンロ以上
  • シャワー付洗面化粧台
    シャワー付洗面化粧台
  • 追い焚き
    追い焚き
  • 浴室乾燥機
    浴室乾燥機
  • バストイレ別
    バストイレ別
  • 温水洗浄便座
    温水洗浄便座
  • フローリング
    フローリング
  • 和室
    和室
  • モニター付インターホン
    モニター付インターホン
  • 照明
    照明
  • エレベーター
    エレベーター
  • オートロック
    オートロック
敷地権利 所有権
管理形態
委託(巡回)
取引態様
仲介
取扱い不動産会社

株式会社ミネルバ
0823-27-3068
広島県呉市押込西平町21-19
広島県知事(3)10160