安芸郡熊野町出来庭10丁目
MAP
| 物件No. | 5138 |
|---|
| 価格 | 3,430万円 |
|---|
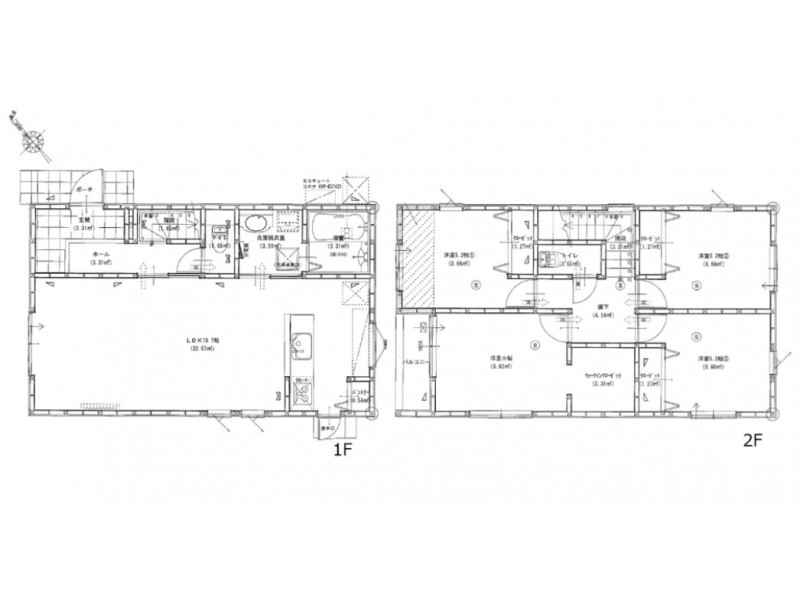
| 間取り |
4LDK
|
|---|
| 所在地 | 広島県安芸郡熊野町出来庭10丁目 |
|---|
| 交通情報 | 火ノ原バス停歩2分 |
|---|
| 建物の階数 | 地上2階建 |
|---|
| 販売戸数 | 1戸 |
|---|
| 現況 | 新築 |
|---|
| 敷地権利 | 所有権 |
|---|
| 用途地域 | 準住居地域 |
|---|
| 建ぺい率 | 60% |
|---|
| 容積率 | 200% |
|---|
- 取引態様
- 仲介
- 取扱い不動産会社
-
株式会社ミネルバ
0823-27-3068
広島県呉市押込西平町21-19
広島県知事(3)10160

































